Адрес: Россия, Рославль
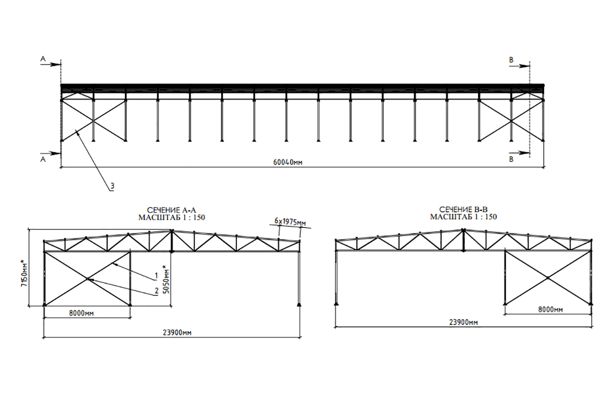
Параметры объекта
- Рабочая высота - 6м
- Высота в коньке - 8.2м
Специалистами компании был выполнен следующий комплекс работ:
- Заполнение крыши - профлист Н60.
- Заливка свай под несущие стойки.
- Изготовление и монтаж каркаса.
- Заполнение крыши - профлист Н60.